オプション仕様メニュー

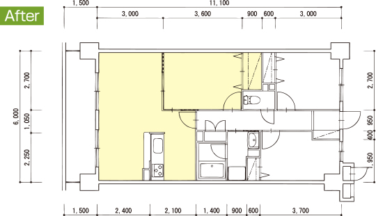
プラン例1
和室を洋室に。押入はクローゼットに。
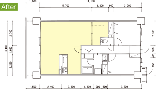
プラン例2
和室をなくして、広いLDKとウォークインクローゼットに。
プラン例3
和室を4.5畳+収納に変更し、押入は洋室側のクローゼットと合わせてウォークインクローゼットに。

プラン例1
和室を洋室に。押入はクローゼットに。
プラン例2
和室をなくして、広いLDKとウォークインクローゼットに。
プラン例3
和室を4.5畳+収納に変更し、押入は洋室側のクローゼットと合わせてウォークインクローゼットに。