
30坪(4LDK)参考モデルプラン
基準となる30坪の参考プランです。
プランが異なっても30坪の金額は変わりません。(標準仕様)
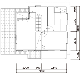
●1階平面図

●2階平面図

●南側立面図

●西側立面図

●北側立面図

●東側立面図

標準仕様ライフアップパッケージ
延床面積 30坪
5,750,000円(税込)
価格は30坪を基準に1坪あたり増減±93,000円(税込)で算出
●延床面積別価格表 単位:円
| 25坪 | 5,285,000 | 34坪 | 6,122,000 | 43坪 | 6,959,000 |
| 26坪 | 5,378,000 | 35坪 | 6,215,000 | 44坪 | 7,052,000 |
| 27坪 | 5,471,000 | 36坪 | 6,308,000 | 45坪 | 7,145,000 |
| 28坪 | 5,564,000 | 37坪 | 6,401,000 | 46坪 | 7,238,000 |
| 29坪 | 5,657,000 | 38坪 | 6,494,000 | 47坪 | 7,331,000 |
| 30坪 | 5,750,000 | 39坪 | 6,587,000 | 48坪 | 7,424,000 |
| 31坪 | 5,843,000 | 40坪 | 6,680,000 | 49坪 | 7,517,000 |
| 32坪 | 5,936,000 | 41坪 | 6,773,000 | 50坪 | 7,610,000 |
| 33坪 | 6,029,000 | 42坪 | 6,866,000 |
※税込みは消費税10%